Beschrijving

Welkom aan de Schimmelpenninckstraat 9, een goed onderhouden en energiezuinige hoekwoning in de kindvriendelijke woonwijk Zonnemaat. Het woonhuis is gebouwd in 1968, meet een woonoppervlak van 98m2 en is gelegen op een perceel van 245m2. Door de jaren heen hebben de eigenaren flink verduurzaamd (vloer-, gevel-, dakisolatie, vloerverwarming begane grond en plaatsen zonnepanelen), waardoor het energielabel op een energiezuinig A-label is gewaardeerd. 

Naast duurzaamheid heeft de woning nog meer te bieden. Zo zijn de begane grond en eerste verdieping uitgerust met airconditioning, is er op eigen terrein gelegenheid voor het parkeren van 2/3 auto’s en is de achterzijde uitgebreid met een luxe aluminium terrasoverkapping v.v. glazen schuifwanden.

 De Schimmelpenninckstraat is een ruim opgezette straat met veel groen, in de kindvriendelijke woonwijk Zonnemaat. Op loopafstand van de woning zijn diverse speeltuinen, scholen en een supermarkt gelegen. Het gezellige centrum van Zevenaar is op een aantal fietsminuten gelegen en biedt een divers aanbod in winkelvoorzieningen en horecagelegenheden.

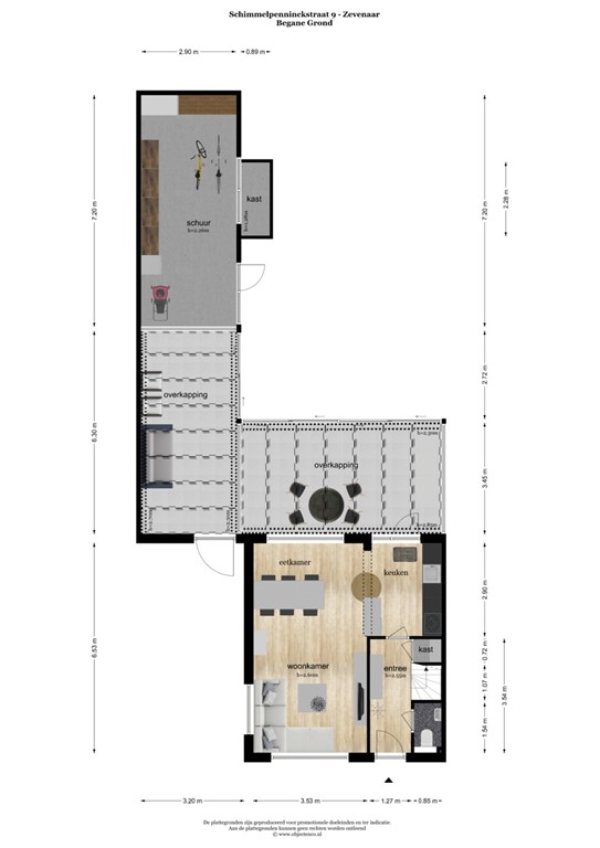
Indeling

Entree via hal met trapopgang, toilet met fontein en een uitgebreide meterkast met 3-fase aansluiting. Lichte doorzonwoonkamer met airconditioning, elektrische rolluiken en vloerverwarming. Aan de achterzijde is de keuken gelegen met diverse inbouwapparatuur zoals een koelkast, combimagnetron, oven, 5-pits keramische kookplaat en vaatwasser. 

Via de keuken kom je uit in de op zuiden gelegen achtertuin. De achtertuin biedt veel privacy en is uitgerust met vrijstaande stenen berging/garage met elektra en een luxe terrasoverkapping v.v. glazenschuifwand.

Eerste verdieping

Overloop met toegang tot de drie slaapkamers, allen met rolluiken, één slaapkamer met airconditioning en één slaapkamer met wasmachine-/drogeraansluiting. Keurige badkamer aan de voorzijde met elektrische vloerverwarming, douchehoek, wastafel en tweede toilet.

Tweede verdieping

Voorzolder met aparte stookruimte v.v. dakraam. De tweede verdieping is uitgebreid met een dakkapel v.v. kunststof kozijnen en een rolluik. Mede door deze dakkapel is er een vierde, ruime slaapkamer gerealiseerd met een wastafel.

Bijzonderheden

Algemene informatie:
-	Bouwjaar 1968;
-	Woonoppervlakte 98m2;
-	Gebouw gebonden buitenruimte (overkapping) 41m2;
-	Externe bergruimte 21m2;
-	Inhoud 339m3;
-	Perceeloppervlakte 339m3;
-	Energielabel A.

Bijzonderheden:
-	Dak, gevel en vloer na-geïsoleerd;
-	13 zonnepanelen aanwezig;
-	2x airconditioning;
-	Vloerverwarming op begane grond;
-	Grotendeels uitgerust met rolluiken;
-	Royale en luxe terrasoverkapping in achtertuin;
-	Eigen oprit voor tenminste 2 auto’s;
-	Woning verkeerd in goede staat van onderhoud.

Kenmerken