Beschrijving
Levensloopbestendige woning in een van de meest gewilde wijken van Ede!
In de geliefde Enka wijk, is deze in 2016 gebouwde eindwoning gelegen. Het woonoppervlak is, mede door een royale uitbouw op de begane grond, bepaald op 104m2 en het woonhuis is gesitueerd op een perceel van 138m2. Wat deze woning uniek maakt, is dat er een slaap- en badkamer op de begane grond zijn gelegen! Verder is bij de bouw aan alle details gedacht. Zo zijn alle slaapkamers uitgerust met elektrische rolluiken, is de begane grond volledig uitgerust met vloerverwarming en is de achtertuin uitgerust met een vrijstaande houten berging.
Door de goede isolatievormen, in combinatie met de 10 zonnepanelen, is het energielabel op een energiezuinig A-label gewaardeerd.
Het woonhuis is gelegen aan een autoluwe straat, pal tegenover de voormalig grote schoorsteen van de Enka fabriek. De woonwijk kenmerkt zich als rustig en kindvriendelijk, waarbij er in de nabije omgeving diverse scholen, winkels en horecagelegenheden te vinden zijn.
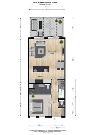
Indeling
Indeling:
Entree via hal met uitgebreide meterkast (3-fase) en toilet met fontein. Ruime slaapkamer met elektrisch rolluik en keurige badkamer met een inloopdouche, wastafel, tweede toilet en wasmachine-/drogeraansluiting. Gezellige woon-/eetkamer met een open keuken, welke is voorzien van een granieten werkblad en diverse inbouwapparatuur zoals een vaatwasser, koelkast, vriezer, koffiemachine, oven, Quooker en 4-pits gaskookplaat (Bora). De begane grond beschikt over een keurige tegelvloer met vloerverwarming.
De zonnige achtertuin is op het westen gelegen en uitgerust met een vrijstaande houten berging en een luxe terrasoverkapping met glazen schuifwanden, waterdicht schuifdak, spots en heathers.
Eerste verdieping
Overloop met toegang tot de ruime tweede en derde slaapkamer, beiden met een inbouwkast en elektrische rolluiken. Op de eerste verdieping is eventueel een tweede badkamer te realiseren.
Bijzonderheden
Algemene informatie:
- Bouwjaar 2016;
- Woonoppervlakte 104m2;
- Gebouw gebonden buitenruimte 15m2;
- Inhoud 371m3;
- Perceeloppervlakte 138m2;
- Energielabel A.
Bijzonderheden:
- Levensloopbestendig;
- Begane grond v.v. vloerverwarming;
- 10 zonnepanelen aanwezig;
- Slaapkamers uitgerust met elektrische rolluiken;
- Cv-ketel (2016) Intergas HR-combiketel;
- Gelegen in een van de meest gewilde wijken van Ede!